ClaireVoyant ®   19-Aug-2025 00:44

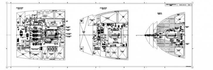
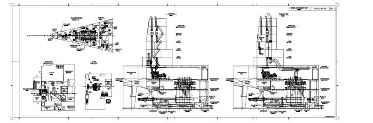
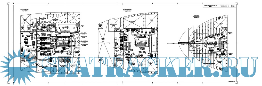
Bulk Carrier FREYA SCHULTE IMO 9861172 Engine Room Arrangement Diagram


Year: 2021
Language: English
Author: Lu Yanping
Genre: Documentation, Drawing, Technical document
Publisher: Tai Zhou Kouan Shipbuilding Co. Ltd.
Edition: 1st
Format: PDF
Quality: eBook
Pages count: 15
Description: Bulk Carrier FREYA SCHULTE
IMO 9861172
Engine Room Arrangement Diagram and equipment list

Contents

Equipment list ........ 2
Technical drawings .... 12

Screenshots

Hidden

FILE WAS DELETED BY COPYRIGHT HOLDERS

You can buy it on https://www.imo.org

Reply
refresh list

Similar releases

50 000 DWT Bulk Carrier Finished Plans - Kawasaki Shipbuilding Corporation [2004, PDF]
150 000 DWT LNG Carrier Machinery Manuals - Daewoo Shipbuilding & Marine Engineering Co., Ltd.…
Bulk Carriers – Guidelines for Surveys, Assessment and Repair of Hull Structures - IACS [2007, PDF]
JYX64-00-550-1 JYM-FN-6.65 Normal type free-fall life boat. Instruction manual and test result of…
Framo Documentation / Equipment, Technical data, System drawings [2005, PDF]
BSafe: Incident Case Study No.30 (February) - Britannia P&I Club [2026, PDF]
Instruction Manual for Mission OS Boiler, KBO-E Burner - AALBORG [2008, PDF]
Inspection Guidelines For Ships Carrying Liquefied Gases In Bulk - SIGTTO [1998, PDF]
TeamTec Incinerator OG 120C - TeamTec AS [2008, PDF]
TeamTec Incinerator GS 500C - TeamTec AS [2007, PDF]
LOAD MORE
  • Topic closed

The time now is: Today 19:01

All times are GMT + 3 Hours