ClaireVoyant ®   04-Feb-2025 08:17

ANSI/ISA-5.4-1991 Instrument Loop Diagrams


Year: 1991
Language: English
Author: ISO
Publisher: ISA
ISBN: 1-55617-227-3
Format: PDF
Quality: eBook
Pages count: 22
Description:
Scope
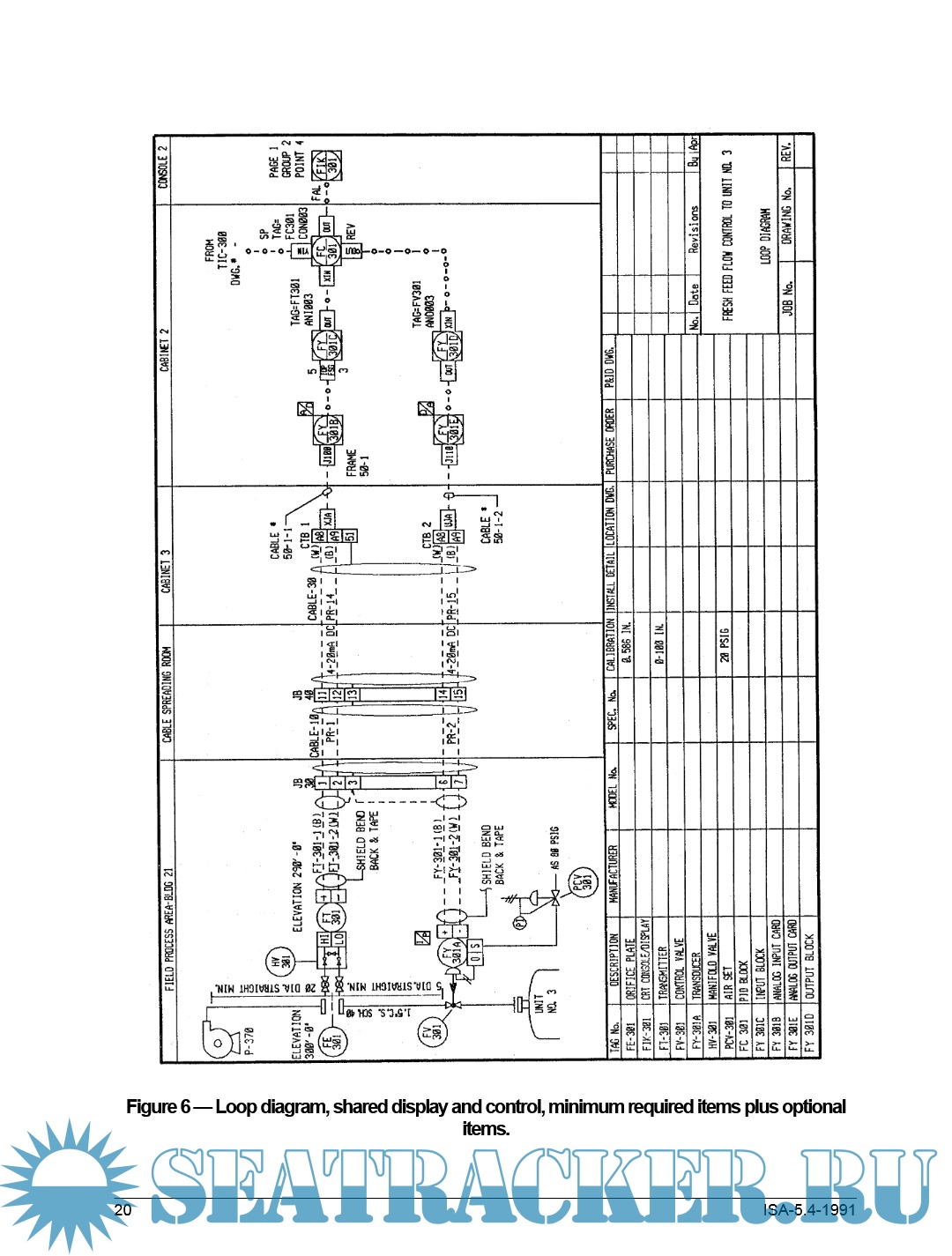
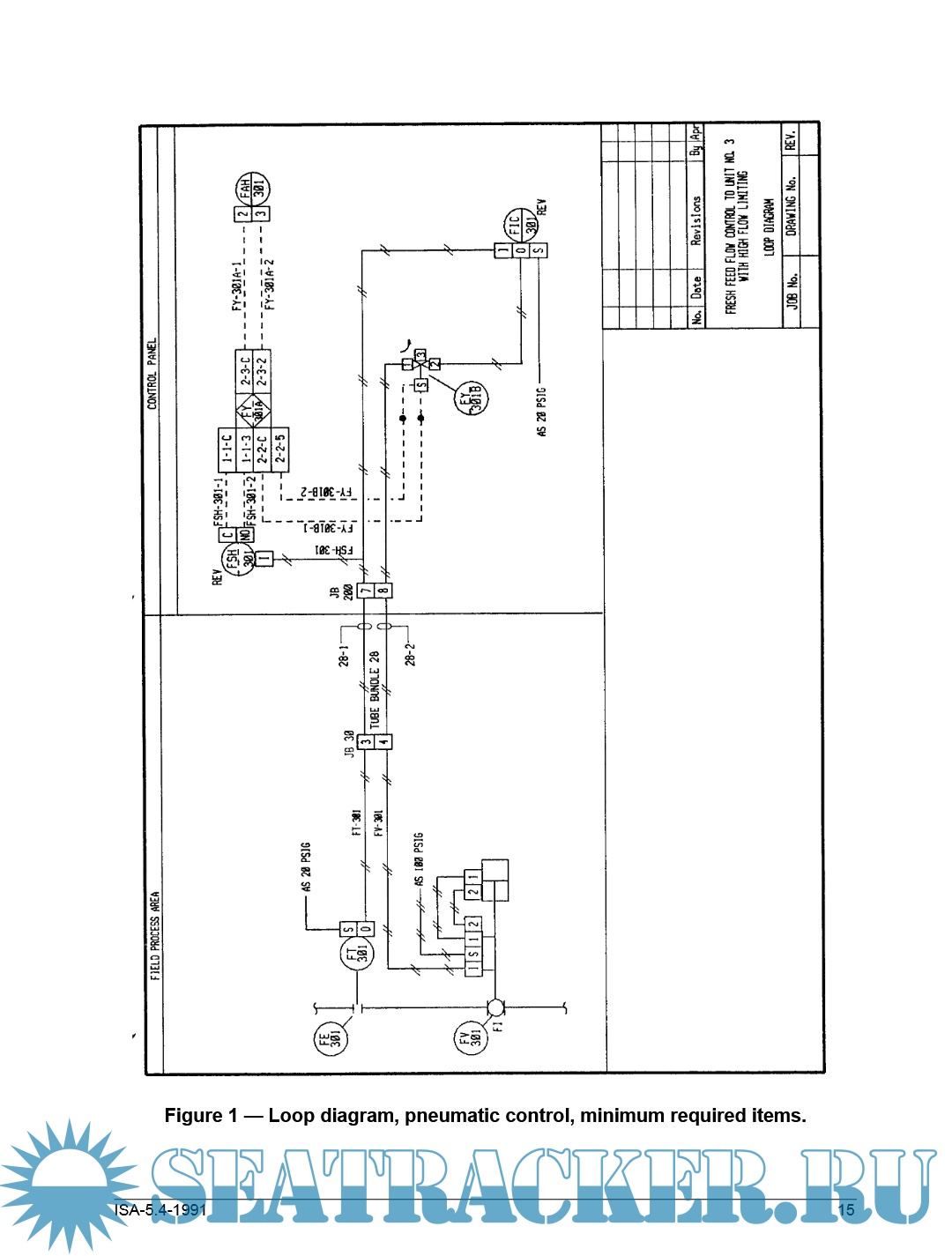
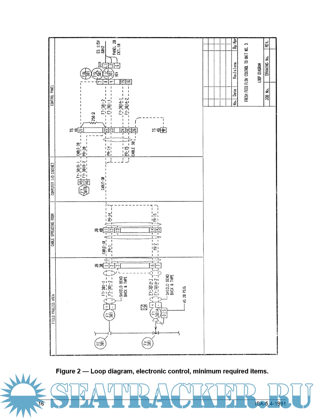
The standard is intended to provide a uniform method of diagramming the physical interconnections of the instruments of a loop and to provide related information that is required for the installation of the instruments. The standard covers pneumatic, fluidic, electric, electronic, and other types of instruments that are interconnected to form a loop.
The standard is for the use of instrumentation system designers, construction people, maintenance people, and others who may be concerned with the installation arrangements for the various instrument loops of a project.
Purpose
Ascertain how widespread is the use of instrument loop diagrams, and determine the degree of uniformity in symbology, semantics, and presentation among those loop diagrams.
Establish whether development of a standard is practical.
Recommend future action by the S&P Department.
Additional info: Despite its age, this is the most recent version of the standard.

Contents

Screenshots

ANSI-ISA-5.4-1991 Instrument Loop Diagrams - ISA [1991].pdf

Download [2 KB]

Thank U
Reply
refresh list

Similar releases

ANSI/ISA-5.1-2022 Instrumentation Symbols and Identification [2022, PDF]
Instrumentation and Control Systems Documentation - Frederick A. Meier, Clifford A. Meier [2011,…
Code of Alerts and Indicators - IMO [2025, PDF]
Guide for Autonomous and Remote Control Functions - ABS [2021, PDF]
Practical Boiler Operation Engineering and Power Plant - Amiya Ranjan Mallick [2014, PDF]
Fire Extinguisher Standards As Per Nfpa 10 [2023, MP4]
Piping and Instrumentation Diagram Development - Moe Toghraei [2019, PDF]
Guide for Vessels Intended to Carry Compressed Natural Gases in Bulk - ABS [2020, PDF]
Competence of remote control centre operators - DNV [2021, PDF]
Isle of Man Ship Registry - SOLAS II-2 The Maintenance and inspection of fire protection systems…
LOAD MORE
  • Reply

The time now is: Today 20:27

All times are GMT + 3 Hours