Year: 2018 Language: English Author: Capt. Deepak Karan Genre: Reference book Edition: 4 Format: PDF Quality: eBook Pages count: 107 Description: Frames, Beams and Beam Knees: Outline longitudinal & transverse framing. Importance of beams & beam knees in ship construction. Combined framing system on transverse sections. Water Tight Bulkheads: Functions, construction, and stiffening, including collision & corrugated bulkheads. Sketch and Describe: Bilge keels: Bilge keel description. Double bottom tank: Double bottom tank description. Peak tanks: Forepeak and aft peak tanks. Side, wing tanks, and bilges: Wing tanks and bilges description. Deck Opening: Construction, stiffening, and closing of deck & superstructure openings. Water tightness for hatches, oil, chemical, and gas tankers. Anchor, Chain and Mooring Arrangements: Cables and chain lockers, construction of Hawse pipes, spurling pipes securing. Typical mooring/anchoring in forecastle. Description of rollers, fair lead types, mooring bits, and cable stopper deck attachment. Sounding Pipes, Air Pipes and Ventilators: Construction of sounding pipes, air pipes, ventilators. Pump & Piping Arrangement: General pumping arrangements, bilge, and ballast lines. Tanker systems; hold drainage, bilge pumps, strum box. Deck freeing, freeing ports, and open rails. Special Doors on Cargo Vessels:
You cannot post new topics in this forum You cannot reply to topics in this forum You cannot edit your posts in this forum You cannot delete your posts in this forum You cannot vote in polls in this forum You cannot attach files in this forum You cannot download files in this forum
Ship Construction UG 21 T4204
Language: English
Author: Capt. Deepak Karan
Genre: Reference book
Edition: 4
Format: PDF
Quality: eBook
Pages count: 107
Description: Frames, Beams and Beam Knees:
Outline longitudinal & transverse framing.
Importance of beams & beam knees in ship construction.
Combined framing system on transverse sections.
Water Tight Bulkheads:
Functions, construction, and stiffening, including collision & corrugated bulkheads.
Sketch and Describe:
Bilge keels: Bilge keel description.
Double bottom tank: Double bottom tank description.
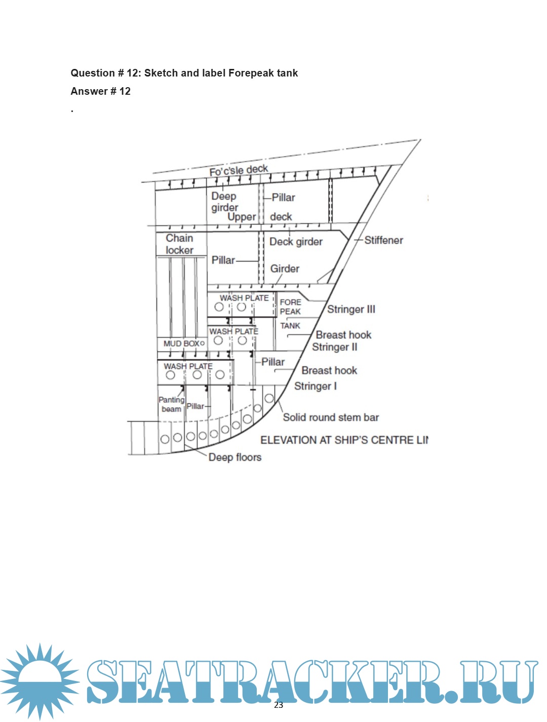
Peak tanks: Forepeak and aft peak tanks.
Side, wing tanks, and bilges: Wing tanks and bilges description.
Deck Opening:
Construction, stiffening, and closing of deck & superstructure openings.
Water tightness for hatches, oil, chemical, and gas tankers.
Anchor, Chain and Mooring Arrangements:
Cables and chain lockers, construction of Hawse pipes, spurling pipes securing.
Typical mooring/anchoring in forecastle.
Description of rollers, fair lead types, mooring bits, and cable stopper deck attachment.
Sounding Pipes, Air Pipes and Ventilators:
Construction of sounding pipes, air pipes, ventilators.
Pump & Piping Arrangement:
General pumping arrangements, bilge, and ballast lines.
Tanker systems; hold drainage, bilge pumps, strum box.
Deck freeing, freeing ports, and open rails.
Special Doors on Cargo Vessels:
Contents
Screenshots
UG 21 T4204---Ship Construction-SEM-II.pdf
Download [11 KB]
Share
* Press button
****Happy Downloading ***
Share
Share