vitbar192 ®   11-Sep-2024 11:29

Boat builder’s handbook


Year: 2021
Language: English
Author: -
Genre: Manual
Format: PDF
Quality: eBook
Pages count: 40
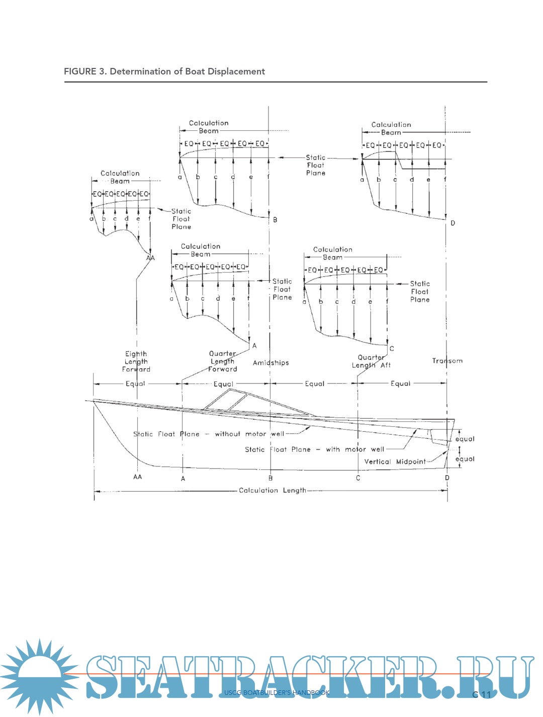
Description: INTRODUCTION Boatbuilders are responsible to determine the capacity figures placed on their monohull boats of less than 20 feet in length. The previous guideline (Display of Capacity Information) has covered the manner in which the capacity and powering figures are to be shown on the USCG capacity label. The ‘Powering’ guideline covers the manner to establish an upper powering limit. This ‘Safe Loading’ guideline covers the maximum capacity and persons capacity lines on the USCG capacity label. It discusses the methods for a boatbuilder to test for or calculate the upper limit for weight capacity and persons capacity, both in terms of pounds and in a whole number of persons.

Contents

Screenshots

Boat builder’s handbook, 2021.pdf

Download [5 KB]

Thank U
Reply
refresh list

Similar releases

Wave loads - DNV GL [2018, PDF]
Navigation Rules and Regulations Handbook - USCG [2020, EPUB/MOBI/AZW/PDF]
Rigging Manual V6 - RS Aero [PDF]
Rigging Manual V5 - RS Aero [PDF]
Rigging Manual V1 - RS Aero [PDF]
Diamond 53 - Handymax Bulk Carrier - Stability information manual - Carl Bro [2006, PDF]
Boat Crew Handbook – 1 Boat Operations - US Coast Guard [2017, PDF]
Hydrostatics and Stability - Dr. Hari V. Warrior [2012, MP4]
SmartCAL-Load v.2.6 - SmartCALWorx [2019]
Complete Book of Anchoring and Mooring - EARL R. HINZ [1986, PDF]
LOAD MORE
  • Reply

The time now is: Today 19:26

All times are GMT + 3 Hours