pierdolphin1950 ®   26-Nov-2021 13:33

MT Marlin - Loading Manual


Year: 2010
Language: english
Author: ODELY ME
Genre: Manual
Format: PDF
Quality: eBook
Pages count: 167
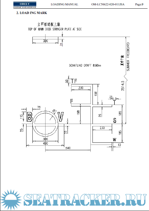
Description: Oil/Chemical IMO II Tanker 16500 DWT Product Loading Manual

Contents

Screenshots

MT Marlin - Loading Manual.pdf

Download [5 KB]

Thank U
Reply
refresh list

Similar releases

MV THORCO LOGOS - Stability Information for Grain Loading - Honda Heavy Industries Co., Ltd [2015,…
OPT Maersk Kiera: Machinery Systems Manual - Worldwide Marine Technology Limited [2011, PDF]
13 000 DWT Oil/Chemical Tanker Final Drawings - 21st Century Shipbuilding CO., LTD. (South Korea…
MV THORCO LOGOS - Ballast Water Management Plan - MIURA Co., Ltd , Class NK [2015, PDF]
Air Product Norway - Marine Nitrogen Generator - Air Product Norway [2010, PDF]
MV THORCO LOGOS - Damage control booklet for dry cargo ship - Honda Heavy Industries Co., Ltd…
MV THORCO LOGOS - Damage Stability Information for Master - Honda Heavy Industries Co., Ltd [2015,…
HA-09 Stability information and loading manual. PCC Glorious Ace, 5200 units. - Minaminippon…
Chemical-Oil tanker “British Ensign” - IMO 9312913 – Machinery Operating Manual - 2010 - Hyundai…
BLU Code - Code of practice for the safe loading & unloading of Bulk Carriers - IMO [2011, PDF]
LOAD MORE
  • Reply

The time now is: Today 23:33

All times are GMT + 3 Hours