neverless101 ®   03-Jul-2019 09:31

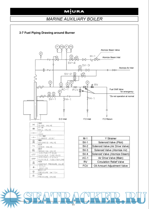
SAFETY, OPERATING & MAINTENANCE INSTRUCTIONS MARINE AUXILIARY BOILER (HB-08T,10T,12T,15T,18T) - STEAM ATOMIZING BURNER


Year: -
Language: english
Author: MIURA
Genre: Manual
Format: PDF
Quality: eBook
Pages count: 41
Description: SAFETY, OPERATING & MAINTENANCE INSTRUCTIONS MARINE AUXILIARY BOILER (HB-08T,10T,12T,15T,18T) - STEAM ATOMIZING BURNER

Contents

Screenshots

HB-08T~ E990-0706-05.pdf

Download [9 KB]

Thank U
Reply
refresh list

Similar releases

SAFETY, OPERATING & MAINTENANCE INSTRUCTIONS MARINE AUXILIARY BOILER (HB-08,10,12,15,18) - MIURA…
Auxiliary Boiler H_Type Z_Boiler Instruction Manual - Miura CO.LTD [2006, PDF]
Safety, Operating & Maintenance Instructions Marine Auxiliary Boiler – Miura GK Series - Miura…
SAFETY ,OPERATING & MAINTENANCE INSTRUCTIONS SHIPBOARD INCINERATOR (BGW-N) - MIURA [PDF]
Instruction Manual for Mission OS Boiler, KBO-E Burner - AALBORG [2008, PDF]
Mitsubishi Auxiliary Boiler Type MAC-30B - Mitsubishi Heavy Industries, LTD. [2003, PDF]
AALBORG Mission OM25 - Technical manual [1996, PDF]
MANUAL FOR WATER TREATMENT OF MIURA BOILER - MIURA [PDF]
AALBORG burner type WH MS7Z [PDF]
AALBORG - Instruction manual for IGS, Mission OL boiler, AV-6N Economizer [2008, PDF]
LOAD MORE
  • Reply

The time now is: Today 20:10

All times are GMT + 3 Hours